Speciální nabídka RAVAK
K dostání od 6. ledna 2025 do 31. ledna 2025
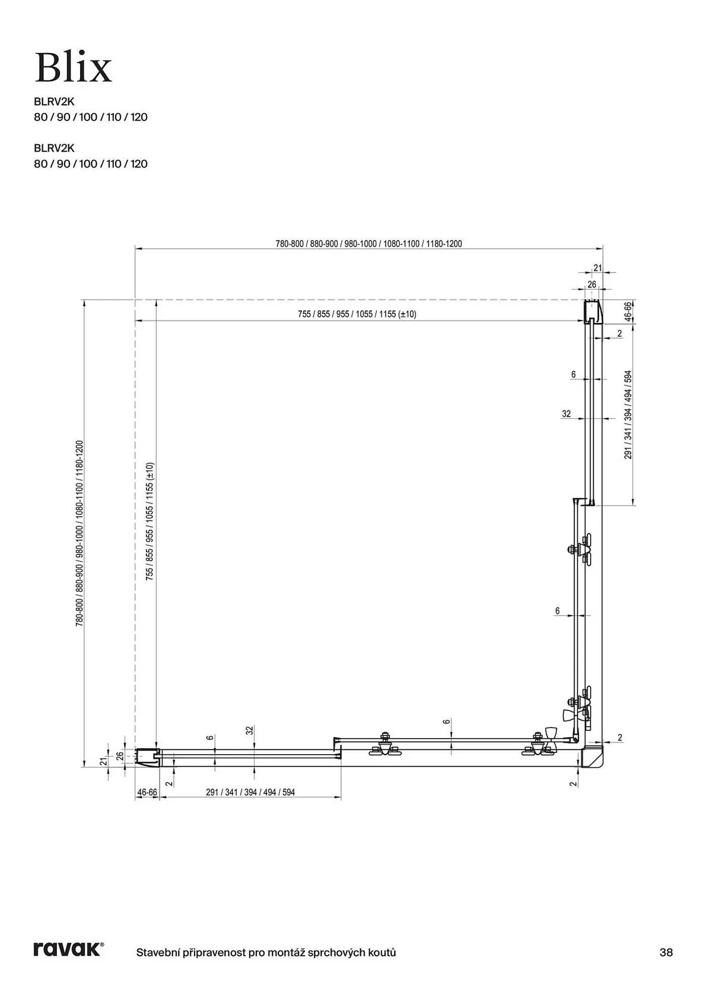
Nový katalog RAVAK je tu!
Nejlepší propagační akce, slevy a možnosti úspor najdete na adrese RAVAK v tomto katalogu platné od 6. ledna 2025 do 31. ledna 2025. V nich 45 stránky najdete nejnovější novinky a nabídky od RAVAK abyste si mohli koupit vše, co potřebujete, a přitom neutráceli zbytečně. Najděte si nejbližší RAVAK obchod nebo navštivte jejich internetový obchod a využijte všech slev na letošní svátky. Zapomeňte na inflaci a začněte si užívat nakupování v RAVAK a všechny vaše oblíbené obchody. Ravak nabízí vany, sprchové kouty a dveře, vany s hydromasážními systémy, umyvadla, sanitární keramiku (WC, bidety a keramická umyvadla), koupelnový nábytek, baterie a doplňky najdete nejnovější katalogy nejlepších obchodů v zemi na jednom místě. Najděte neuvěřitelné slevy a ušetřete na Nábytek, Sport, Zdraví a krása, Elektronika, Nákupní portály, Nástroje a materiály, Móda, Supermarkety, Ostatní, Děti, Domácí zvířata a mnoho dalších obchodů. má všechny propagační akce, které hledáte. Každý den máme nové katalogy, takže se nezapomeňte podívat na , než půjdete nakupovat - nepřeplácejte za věci, které potřebujete! Con má plný přístup k nejlepším akcím a slevám od RAVAK a všechny nejlepší obchody v zemi.
